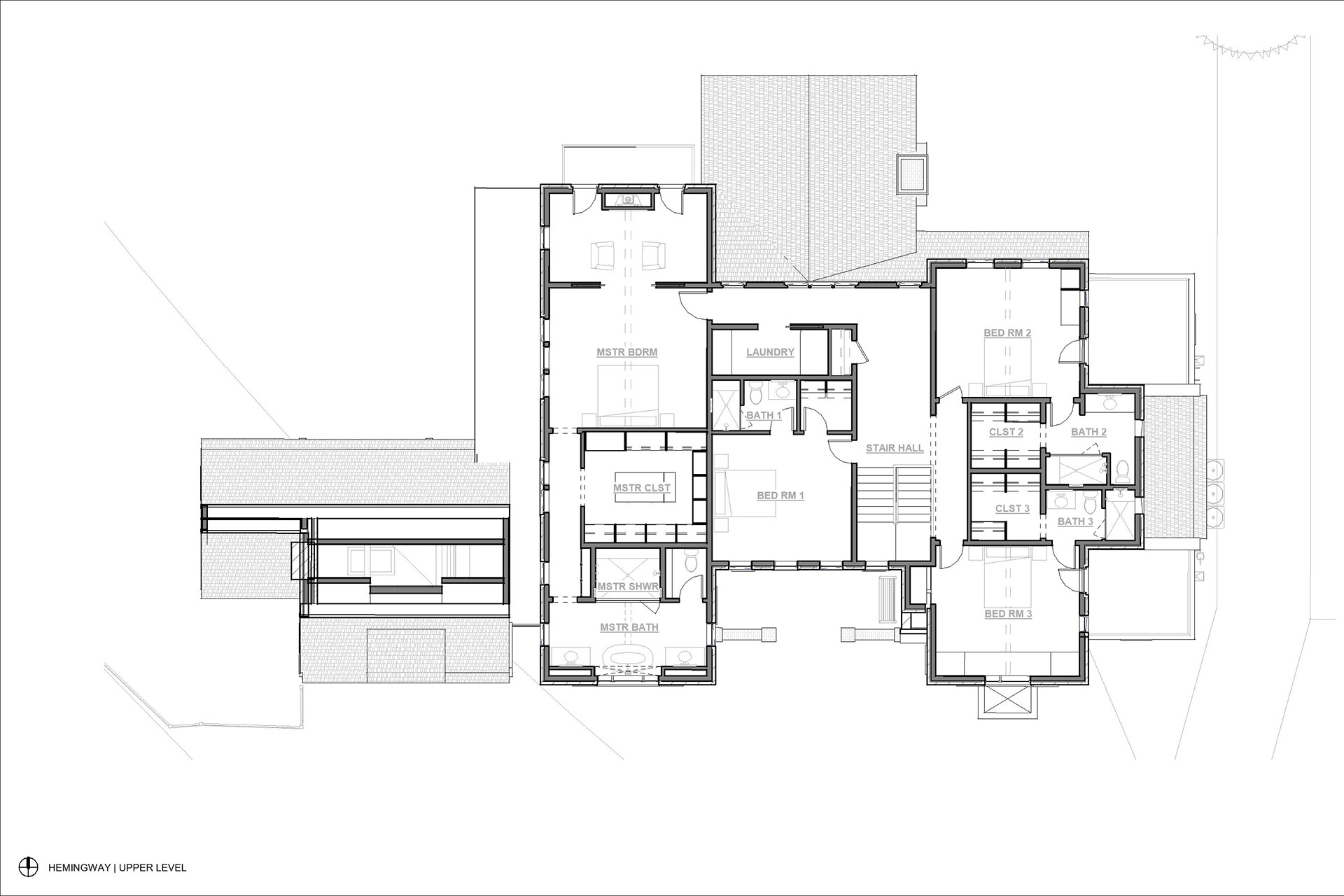
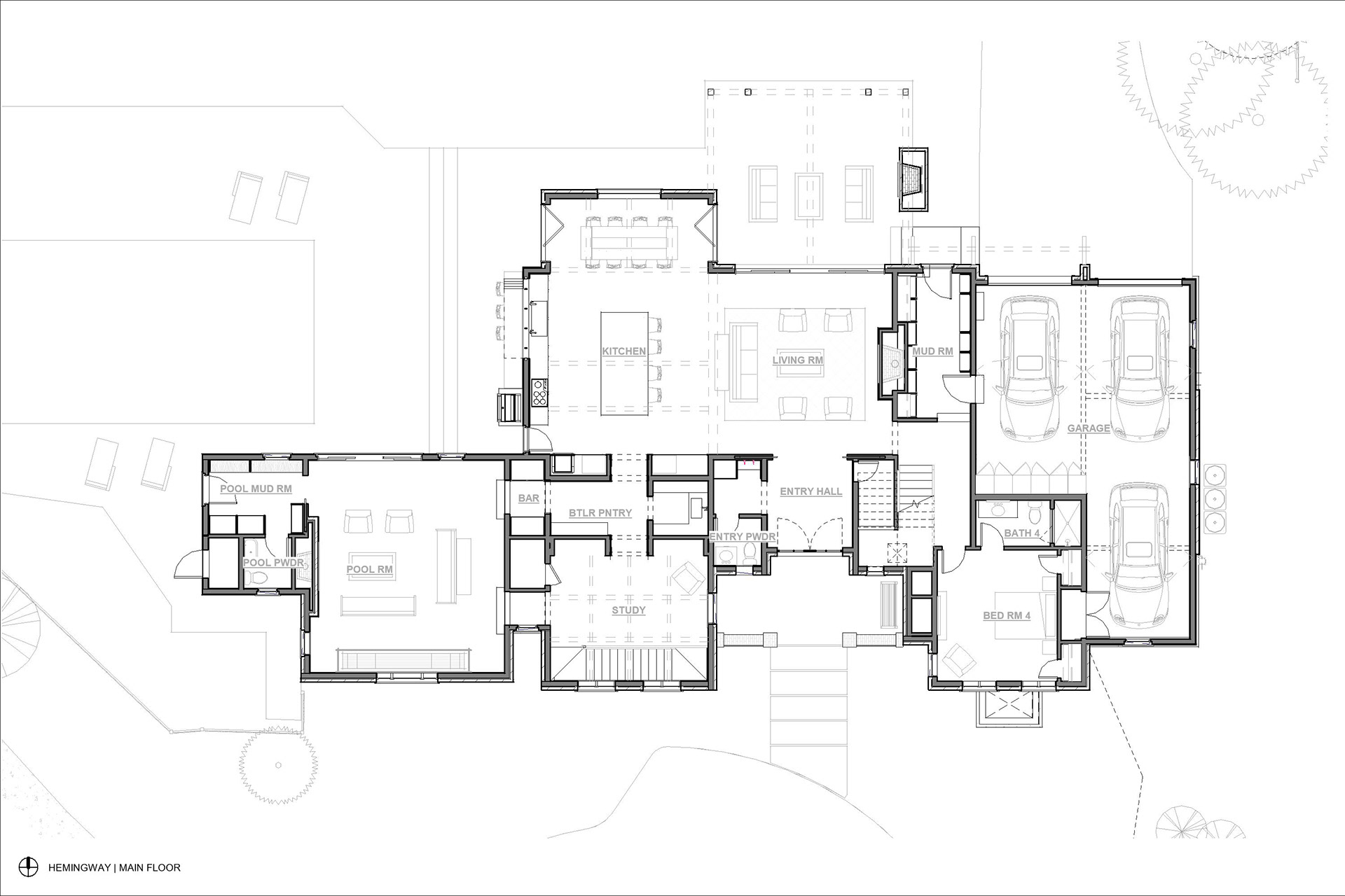
Location: Old Crestmoor, Denver, CO
Completed: 2020
Builder: Chalet
Work completed while a project manager at Chalet

You may also like

Back to Top