 
      
     
      
     
      
     
      
     
      
     
      
    Location: Country Club, Denver, CO
Completed: 2020
Builder: Chalet
Work completed while a project manager at Chalet
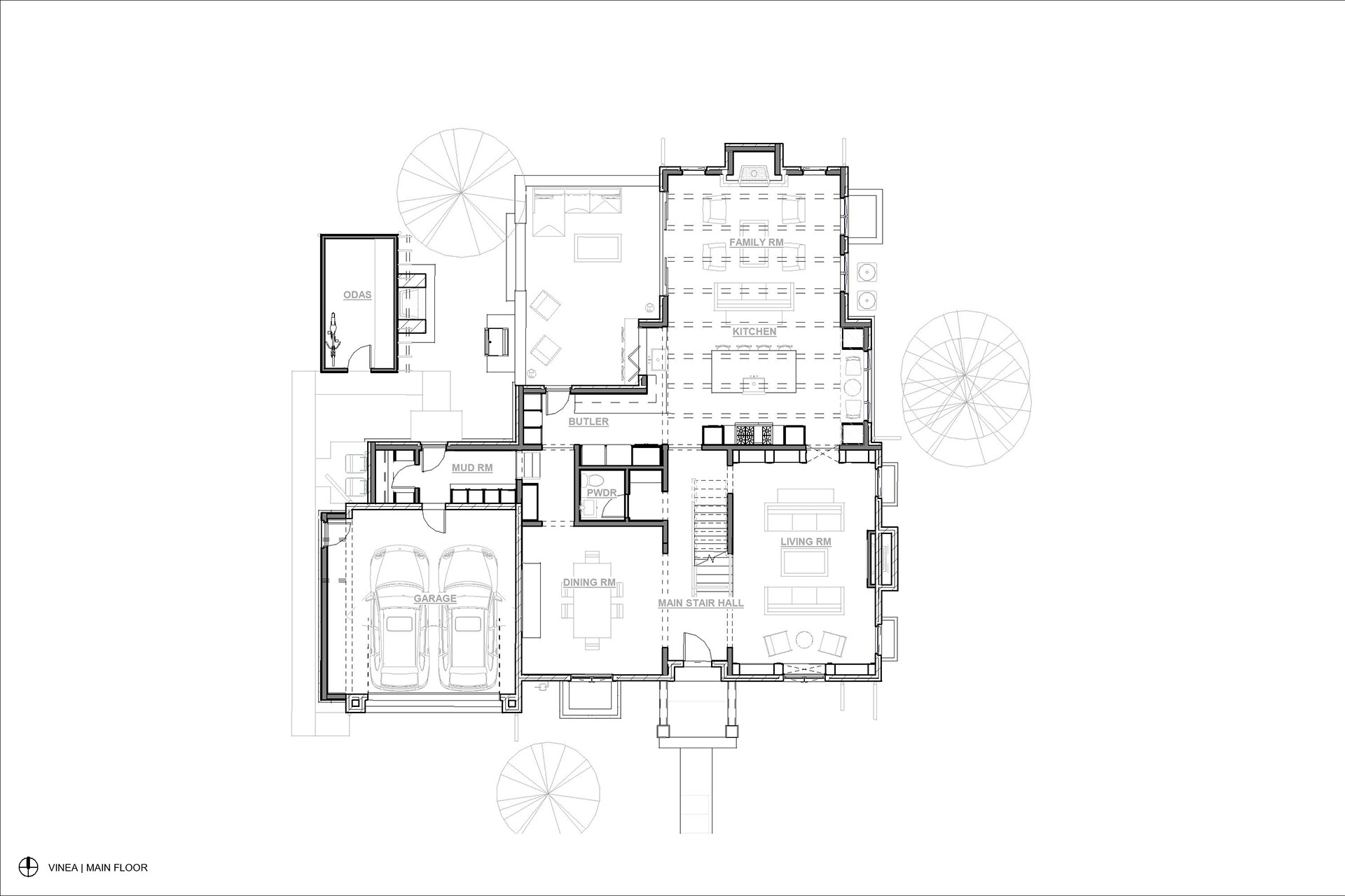
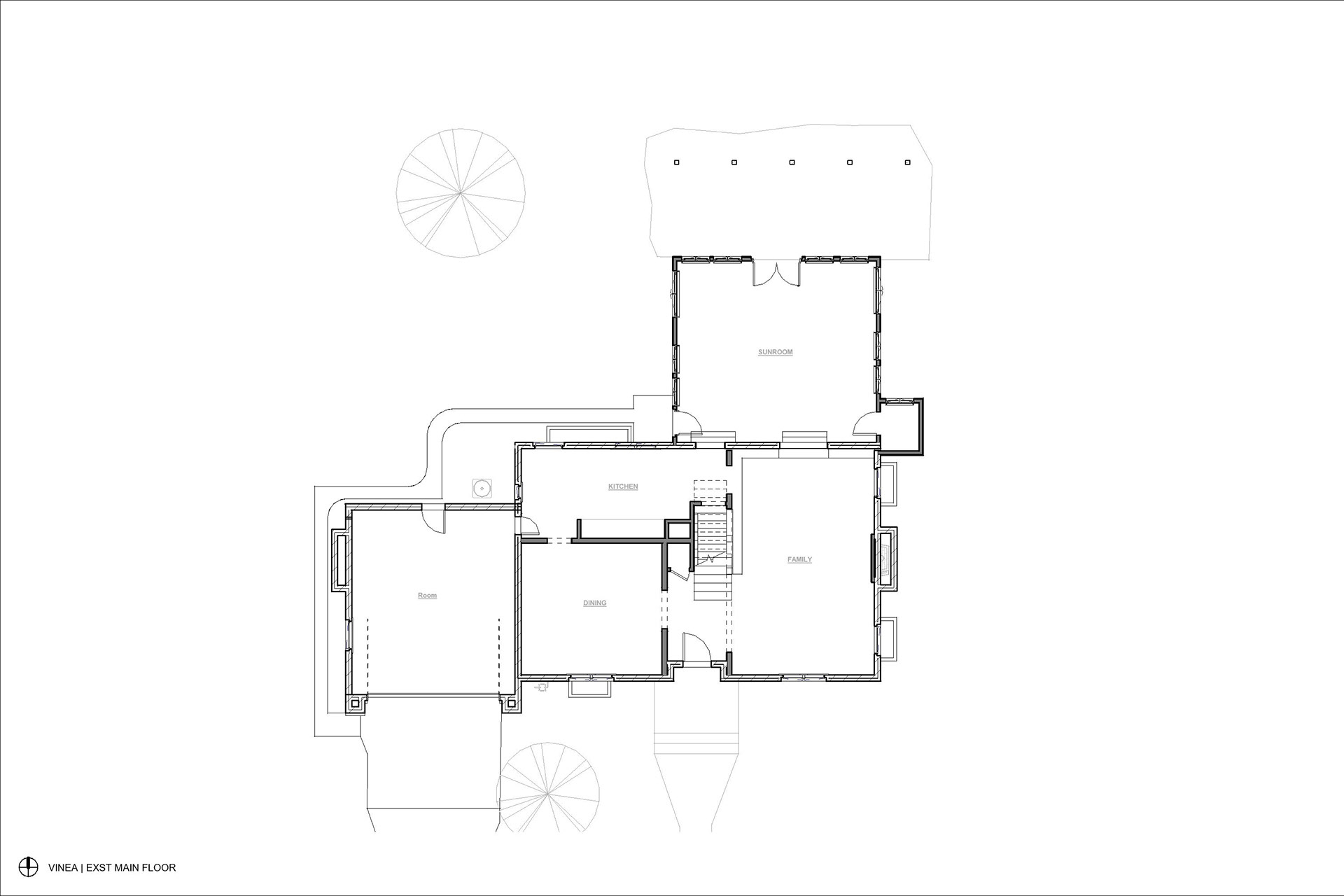
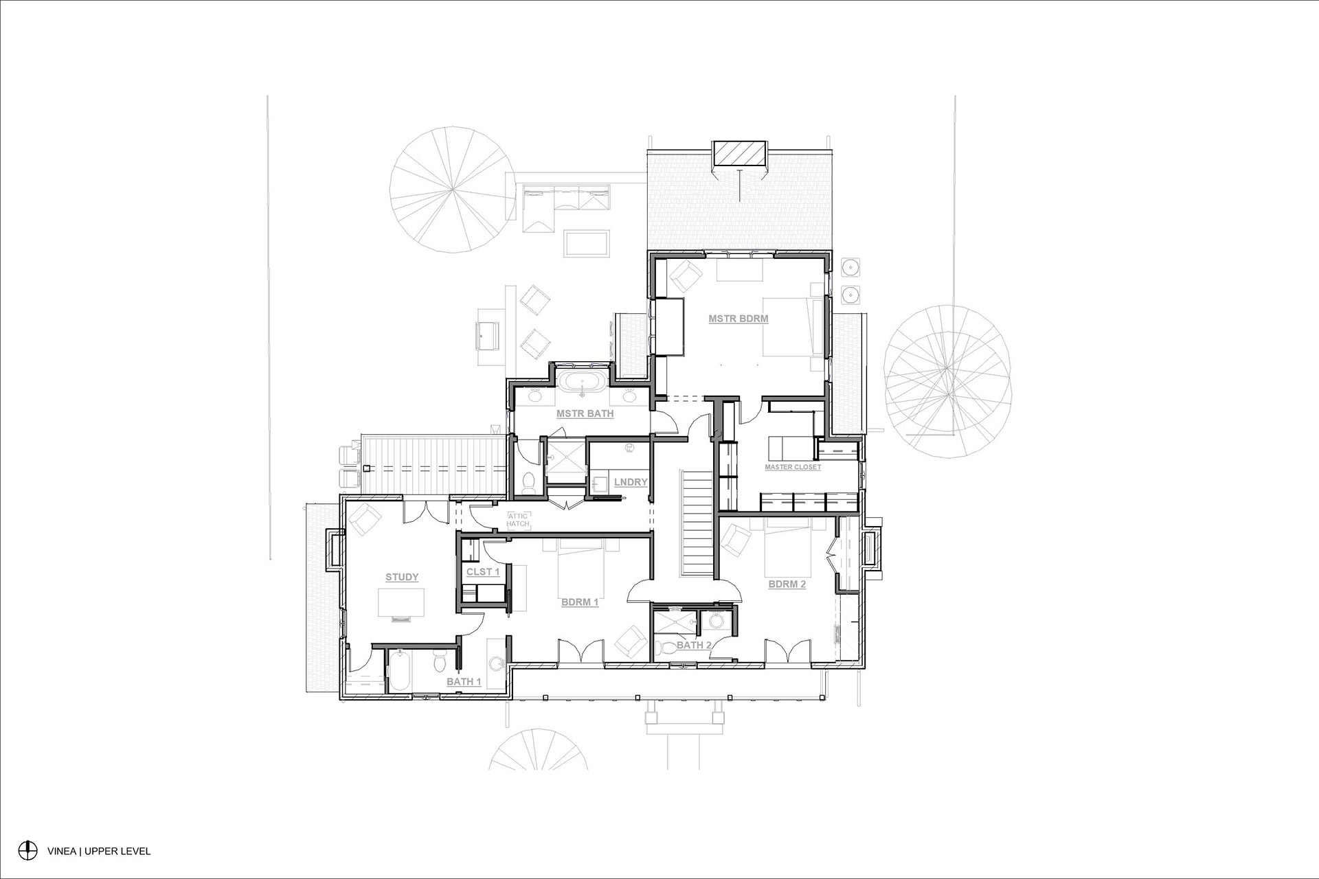
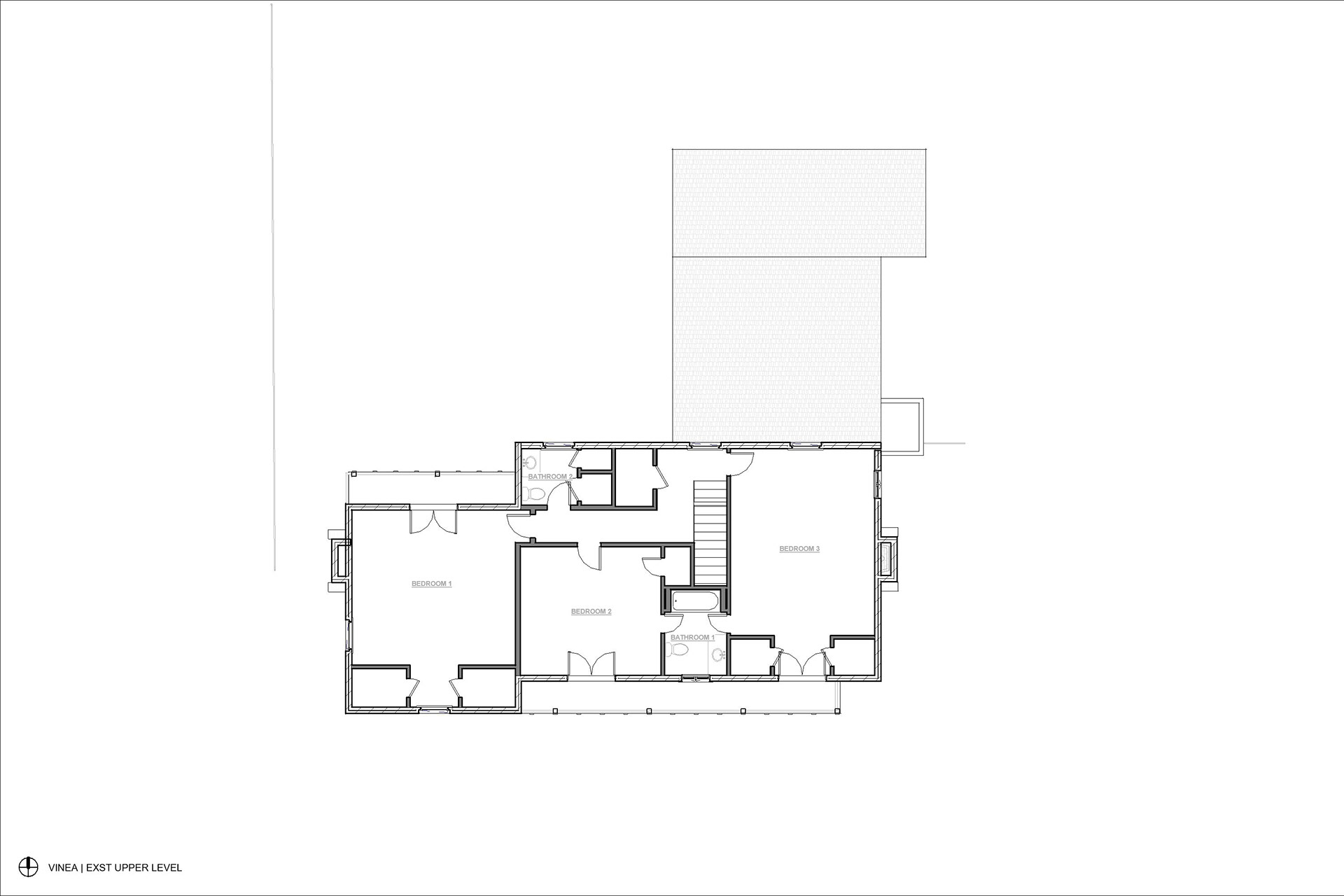
Landmark and neighborhood protected Country Club projects are fun puzzles, and the constraints placed on the designs, always result in something unique.
 
      
     
      
     
      
     
      
     
      
    